簡易情報|所在地:東京都北区中十条3丁目、築年月:1972/10、建物構造:木造、広さ:128.88㎡、最寄り駅:JR京浜東北線*東十条駅*徒歩3分、詳細は次項をクリック🐾
- 賃料
- 40万円
- 敷金
- 1ヶ月
- 礼金
- 2ヶ月
- 広さ
- 1K
- 種別
- 店舗・事務所
- 築年数
- 1972/10
セールスポイント
特徴
京浜東北線『東十条』駅徒歩3分🚃便利な立地♪
京浜東北線の東十条駅からは徒歩3分の駅近賃貸物件。 埼京線の十条駅からも徒歩11分と2路線使える便利な立地!下町の人情味+落ち着いた住宅街「東十条」
下町の人情味や落ち着いた住宅街、個人経営の飲食店も数多く点在、 ファミリーから単身者まで幅広い層が生活を楽しむ街です。 そんな街で犬と触れ合えるもふもふcafeや駅近の利便性を活かしたペットホテルをやってみるのはいかがですか? 用途地域:第一種住居地域設備
事務所可, ペット可能, 未入居, ガスコンロ, システムキッチン, バス専用, トイレ専用, バス・トイレ別, エアコン, 室内洗濯機置き場, 地デジ対応, 都市ガス, 公営水道, 民泊利用可(許可取得は行政へ相談),現況渡し
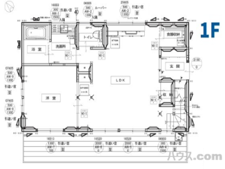
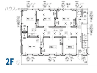
物件概要
- 物件名
- P-338 東十条1棟店舗物件
- 物件所在地
- 東京都北区 中十条3丁目
- 交通機関
- JR京浜東北・根岸線 東十条駅 徒歩3分
JR埼京線 十条駅 徒歩11分 - 間取り詳細
- 1K
- 専有面積
- 128.88m²
- 所在階/地上階数
- 1
- 建物構造
- 木造
- 築年月
- 1972/10
- 賃料
- 40万円
- 更新料
- ヶ月
- 状況
- 空有
その他
- 取引態様
- 先物
- 自社管理番号
- P-338
- 情報更新日
- 2025/12/21
※保証会社:加入要
※借主負担による工事可(相談)
